
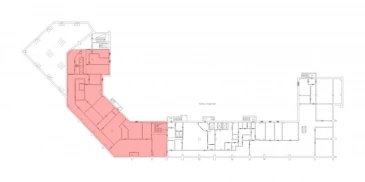
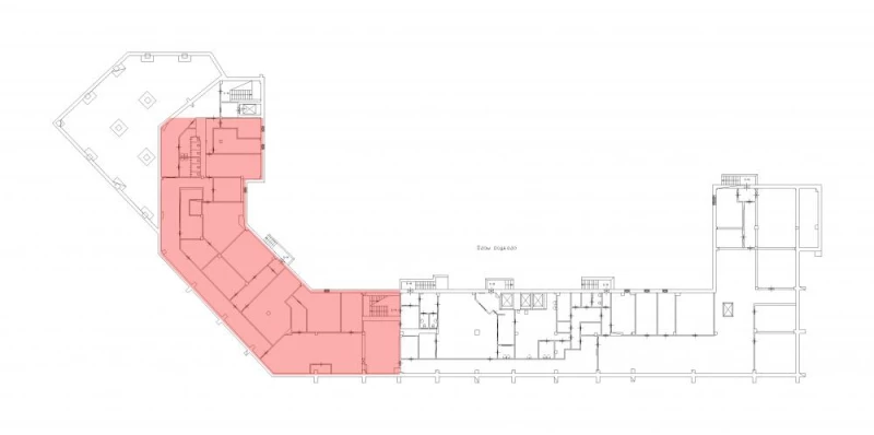
Конст2-зА-00 724 кв.м Торговля 960
724 м²
площадь960 ₽
за м²695 040 ₽
за месяц












Характеристики
| Район: | Московский |
| Метро: | Московская |
| Бизнес-центр | "К-2" бизнес-центр |
| Этаж: | подвал |
Безопасность
| Охрана: | круглосуточная охрана |
| Контроль доступа: | в наличии |
Коммуникации
| Телефон: | есть |
| Интернет: | Оптоволокно |
В арендную плату входит
Профессиональное управление
НДС
Оплачивается отдельно
Водоснабжение
Электроснабжение
Отопление
Описание
В Московском районе города предлагается в аренду блок помещений под торговлю. Общая площадь помещений составляет 724 кв. м. Блок включает в себя небольшие торговые залы, встроенные офисно-бытовые помещения, складские площади, собственный санузел. Оснащение: выделенная электрическая мощность, отопление, освещение, ХВС и водоотведение. Для удобства арендатора во внутреннем дворе есть парковка. Действует система СКУД. Проход осуществляется по электронным картам доступа. Хорошая транспортная доступность объекта обусловлена близостью таких крупных городских автомагистралей как Пулковское и Московское шоссе, Витебский проспект, КАД и ЗСД. В пешей доступности станция метро "Московская".
Запись на просмотр
Пользовательским соглашением
Мы свяжемся с вами
в рабочее время
пн-пт с 09:00 до 18:00







