
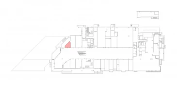
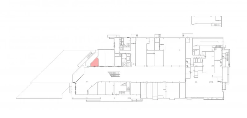
Малый пр-кт В.О.-зА (Корпус 2)-01 12.4 кв.м Торговля 4799
12.4 м²
площадь4799 ₽
за м²59 507,6 ₽
за месяц












Характеристики
| Район: | Василеостровский |
| Метро: | Приморская |
| Торговый центр | Шкиперский молл |
| Этаж: | 1 |
Безопасность
| Охрана: | круглосуточная охрана |
| Контроль доступа: | в наличии |
Коммуникации
| Телефон: | есть |
| Интернет: | Оптоволокно |
В арендную плату входит
Профессиональное управление
НДС
Оплачивается отдельно
Водоснабжение
Электроснабжение
Отопление
Описание
На Малом проспекте ВО, дом 88 сдается в аренду торговое помещение площадью 12,4 кв. м. Должный уровень безопасности поддерживается круглосуточной охраной с постоянным видеонаблюдением. "Шкиперский Молл" обладает прекрасной транспортной и пешеходной доступностью: - неподалеку пролегают улицы Наличная, Нахимова и Кораблестроителей, ЗСД; - до станции метро "Приморская" можно доехать на трамвае или дойти пешком. Предлагаемая площадь оснащена инженерными коммуникациями: отоплением, освещением и электричеством. Для привлечения большего потока потенциальных покупателей возможно размещение рекламы на фасаде.
Запись на просмотр
Пользовательским соглашением
Мы свяжемся с вами
в рабочее время
пн-пт с 09:00 до 18:00







