
ПушкинМоск-зА-02 68.3 кв.м Торговля 570
68.3 м²
площадь570 ₽
за м²38 931 ₽
за месяц








Характеристики
| Район: | Пушкинский |
| Метро: | Купчино |
| Торговый центр | Пушкин, Московская, 25 |
| Этаж: | 2 |
Безопасность
| Охрана: | круглосуточная охрана |
| Контроль доступа: | в наличии |
Коммуникации
| Телефон: | есть |
| Интернет: | Оптоволокно |
В арендную плату входит
Профессиональное управление
НДС
Оплачивается отдельно
Водоснабжение
Электроснабжение
Отопление
Описание
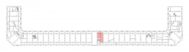
Торговое помещение площадью 68.3 кв. м предлагается в аренду в ТК "Гостиный двор" (г. Пушкин). Второй этаж ТК, рядом с лестницей. Отделка: полы - керамогранит, окрашенные обои. К услугам арендаторов: выделенная электроэнергия, освещение, отопление. Охрана 24 часа.
Запись на просмотр
Пользовательским соглашением
Мы свяжемся с вами
в рабочее время
пн-пт с 09:00 до 18:00






