
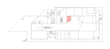
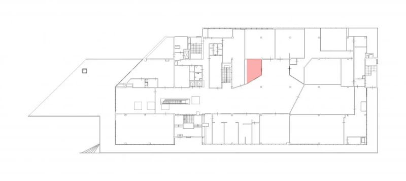
Малый пр-кт В.О.-зА (Корпус 2)-04 24.2 кв.м Торговля 895
24.2 м²
площадь895 ₽
за м²21 659 ₽
за месяц














Характеристики
| Район: | Василеостровский |
| Метро: | Приморская |
| Торговый центр | Шкиперский молл |
| Этаж: | 4 |
Безопасность
| Охрана: | круглосуточная охрана |
| Контроль доступа: | в наличии |
Коммуникации
| Телефон: | есть |
| Интернет: | Оптоволокно |
В арендную плату входит
Профессиональное управление
НДС
Оплачивается отдельно
Водоснабжение
Электроснабжение
Отопление
Описание
Сдаётся в аренду помещение площадью 24.2 кв. м под ДЕТСКУЮ ШКОЛУ ИСКУССТВ. Рассмотрим также аренду под другую деятельность. РАСПОЛОЖЕНИЕ: Малый проспект ВО, дом 88. 4-й ЭТАЖ. Ближайшая станция МЕТРО - "Приморская". Качественная ОТДЕЛКА. Творческие и спортивные секции на этаже. В помещение ПРОВЕДЕНЫ: отопление, освещение, пожарная сигнализация. Круглосуточная ОХРАНА и видеонаблюдение на территории ТК обеспечивают необходимый уровень безопасности. Для привлечения большего потока посетителей возможно РАЗМЕЩЕНИЕ РЕКЛАМЫ. В стоимость аренды входит НДС.
Запись на просмотр
Пользовательским соглашением
Мы свяжемся с вами
в рабочее время
пн-пт с 09:00 до 18:00





