
ПушкинМоск-зА-02 32.9 кв.м Торговля 959
32.9 м²
площадь959 ₽
за м²31 551,1 ₽
за месяц







Характеристики
| Район: | Пушкинский |
| Метро: | Купчино |
| Торговый центр | Пушкин, Московская, 25 |
| Этаж: | 2 |
Безопасность
| Охрана: | круглосуточная охрана |
| Контроль доступа: | в наличии |
Коммуникации
| Телефон: | есть |
| Интернет: | Оптоволокно |
В арендную плату входит
Профессиональное управление
НДС
Оплачивается отдельно
Водоснабжение
Электроснабжение
Отопление
Описание
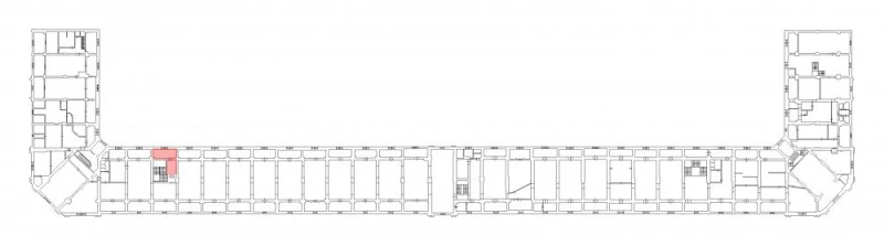
Торговое помещение площадью 32.9 кв. м сдаётся в аренду на Московской ул., д. 25 в Пушкине. Второй этаж торгового центра "Гостиный Двор". Торговая площадь находится сразу у лестницы. Отделка: окрашенные стены, кафель на полу. Проведены необходимые инженерные коммуникации: освещение, отопление, выделенная электрическая мощность. В здании осуществляется круглосуточная охрана.
Запись на просмотр
Пользовательским соглашением
Мы свяжемся с вами
в рабочее время
пн-пт с 09:00 до 18:00








