
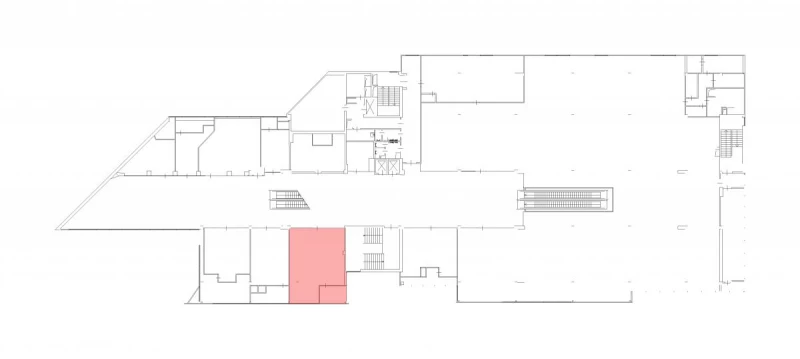
Малый пр-кт В.О.-зА (Корпус 2)-02 89.5 кв.м Торговля 1483
89.5 м²
площадь1483 ₽
за м²132 728,5 ₽
за месяц














Характеристики
| Район: | Василеостровский |
| Метро: | Приморская |
| Торговый центр | Шкиперский молл |
| Этаж: | 2 |
Безопасность
| Охрана: | круглосуточная охрана |
| Контроль доступа: | в наличии |
Коммуникации
| Телефон: | есть |
| Интернет: | Оптоволокно |
В арендную плату входит
Профессиональное управление
НДС
Оплачивается отдельно
Водоснабжение
Электроснабжение
Отопление
Описание
Аренда помещения площадью 89,5 кв. м под магазин на 2-м этаже ТРК "Шкиперский Молл". Василеостровский районе города. Рядом обширный жилой массив, Горный институт. ТК отличается большой популярностью среди жителей района и города. Качественная отделка: кафель на полу, светлые окрашенные стены. Проведены необходимые инженерные коммуникации: освещение, отопление, пожарная сигнализация. Ведётся круглосуточная охрана.
Запись на просмотр
Пользовательским соглашением
Мы свяжемся с вами
в рабочее время
пн-пт с 09:00 до 18:00






