
Малый пр-кт В.О.-зА-02 12.9 кв.м Торговля 3178
12.9 м²
площадь3178 ₽
за м²40 996,2 ₽
за месяц







Характеристики
| Район: | Василеостровский |
| Метро: | Приморская |
| Торговый центр | Шкиперский молл |
| Этаж: | 2 |
Безопасность
| Охрана: | круглосуточная охрана |
| Контроль доступа: | в наличии |
Коммуникации
| Телефон: | есть |
| Интернет: | Оптоволокно |
В арендную плату входит
Профессиональное управление
НДС
Оплачивается отдельно
Водоснабжение
Электроснабжение
Отопление
Описание
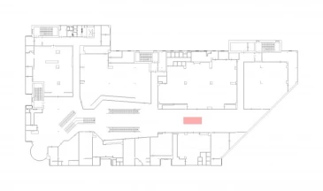
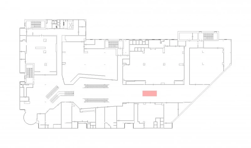
Предлагается в аренду без посредников торговый островок 12,9 кв. м под аксессуары для гаджетов. Островок находится на 2 этаже по адресу: Малый проспект Васильевского острова, д. 88, торговый центр "Шкиперский Молл". Действующий торгово-развлекательный центр, обеспечен высокий пешеходный трафик. Рядом с островком расположен магазин электроники "М.Видео". В здании присутствует полное инженерное оснащение. "Шкиперский Молл" расположен вдоль Малого проспекта Васильевского острова. Добраться на автомобиле можно с Наличной улицы, также недалеко расположен съезд с ЗСД. В пешей доступности находится станция метро "Приморская". Рядом с торговым центром расположены остановки общественного наземного транспорта. В торговом центре есть супермаркет "Перекрёсток", а также множество кафе и кофеен. Время работы торгового центра "Шкиперский Молл" с 10:00 до 22:00.
Запись на просмотр
Пользовательским соглашением
Мы свяжемся с вами
в рабочее время
пн-пт с 09:00 до 18:00






