
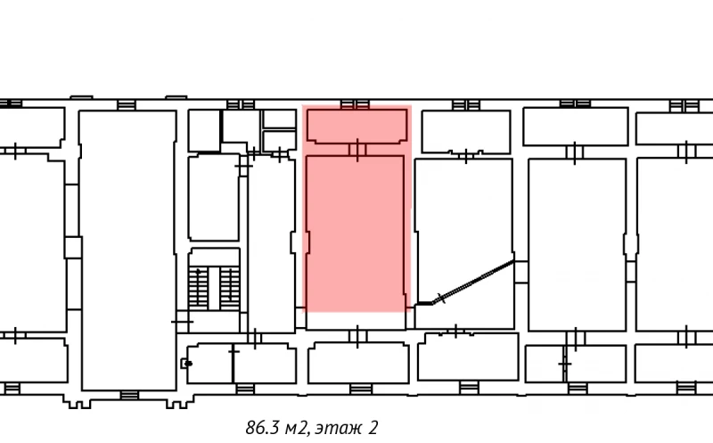
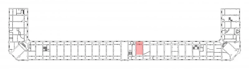
ПушкинМоск-зА-02 86.3 кв.м Торговля 499
86.3 м²
площадь499 ₽
за м²43 063,7 ₽
за месяц














Характеристики
| Район: | Пушкинский |
| Метро: | Купчино |
| Торговый центр | Пушкин, Московская, 25 |
| Этаж: | 2 |
Безопасность
| Охрана: | круглосуточная охрана |
| Контроль доступа: | в наличии |
Коммуникации
| Телефон: | есть |
| Интернет: | Оптоволокно |
В арендную плату входит
Профессиональное управление
НДС
Оплачивается отдельно
Водоснабжение
Электроснабжение
Отопление
Описание
Аренда торгового помещения в ТК "Гостиный Двор" (г. Пушкин). Предлагается в аренду торговое помещение площадью 86,3 кв. м на 2‑м этаже торгово‑развлекательного комплекса в городе Пушкин. Локация и транспортная доступность: -Удобный подъезд по Московскому шоссе: до Санкт‑Петербурга — 25–30 минут на автомобиле или автобусе; -близость ключевых магистралей: Оранжерейная улица, Октябрьский и Софийский бульвары; -пешеходная доступность к знаковым зелёным зонам: Екатерининский парк, Соборный сквер, Лицейский садик. Состояние помещения: -Качественная отделка: кафельный пол, окрашенные стены, подвесной потолок; -инженерные коммуникации: все современные системы подключены; -связь: высокоскоростной интернет и цифровая телефония. Преимущества для бизнеса: -Высокий пешеходный трафик благодаря удачному расположению и разнообразию магазинов в комплексе; -возможность размещения рекламной вывески на фасаде здания — дополнительный инструмент привлечения клиентов; -престижный район с постоянным потоком жителей и туристов. Помещение идеально подходит для: -Розничного магазина (одежда, аксессуары, сувениры); -пункта выдачи заказов или шоурума; -кафе или кофейни; -сервисного центра или офиса продаж. Для уточнения условий аренды, стоимости и организации просмотра свяжитесь с нами — мы оперативно предоставим всю необходимую информацию и ответим на ваши вопросы. Осмотр помещения проводится по предварительной договорённости.
Запись на просмотр
Пользовательским соглашением
Мы свяжемся с вами
в рабочее время
пн-пт с 09:00 до 18:00





