
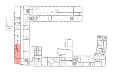
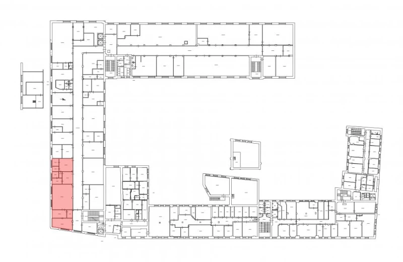
Звенигородская-зК-02 220.3 кв.м Общ. питание 1399
220.3 м²
площадь1399 ₽
за м²308 199,7 ₽
за месяц













Характеристики
| Район: | Адмиралтейский |
| Метро: | Звенигородская |
| Бизнес-центр | "Звенигородский" бизнес-центр |
| Этаж: | 2 |
Безопасность
| Охрана: | круглосуточная охрана |
| Контроль доступа: | в наличии |
Коммуникации
| Телефон: | есть |
| Интернет: | Оптоволокно |
В арендную плату входит
Профессиональное управление
НДС
Оплачивается отдельно
Водоснабжение
Электроснабжение
Отопление
Описание
Предлагается в аренду великолепное помещение общей площадью 220,3 кв. м на втором этаже престижного бизнес-центра. Идеальное решение для создания концептуального ресторана в индустриальном стиле. Высота потолков 4,8 метра создает впечатляющее пространство. Бетонный пол и окрашенные стены — идеальная база для лофт-интерьера. Грузовой лифт (1,4 х 1,95 х 2,2 м) с грузоподъемностью 2 тонны для удобной доставки продуктов. Возможность организации нескольких зон: основного зала, кухни и подсобных помещений. Готовы заняться реконструкцией под арендатора! Технические характеристики: *Центральное отопление обеспечивает комфортную температуру в любое время года. *Готовая инфраструктура здания. *Возможность перепланировки под концепцию ресторана. Преимущества локации: *Удобное расположение по адресу: улица Звенигородская, дом 9-11. *Высокий пешеходный трафик. *Охраняемая территория с парковкой для гостей. Дополнительные преимущества: *Возможность создания уникального интерьера с сохранением индустриальных элементов. *Простор для реализации любых дизайнерских решений. *Наличие столовой на первом этаже, что говорит о высоком потенциале локации. *Закрытая территория обеспечивает безопасность и комфорт для посетителей. Идеально подходит для: *Концептуального ресторана в стиле "лофт". *Гастрономического пространства с открытой кухней. *Винного бара с собственной кухней. *Кафе-кондитерской премиум-класса. *Семейного ресторана с детской зоной. Помещение готово к реализации самых смелых идей в сфере ресторанного бизнеса. Свяжитесь с нами для организации просмотра и обсуждения условий аренды.
Запись на просмотр
Пользовательским соглашением
Мы свяжемся с вами
в рабочее время
пн-пт с 09:00 до 18:00





