
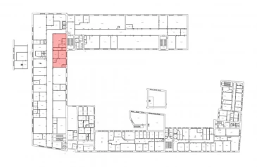
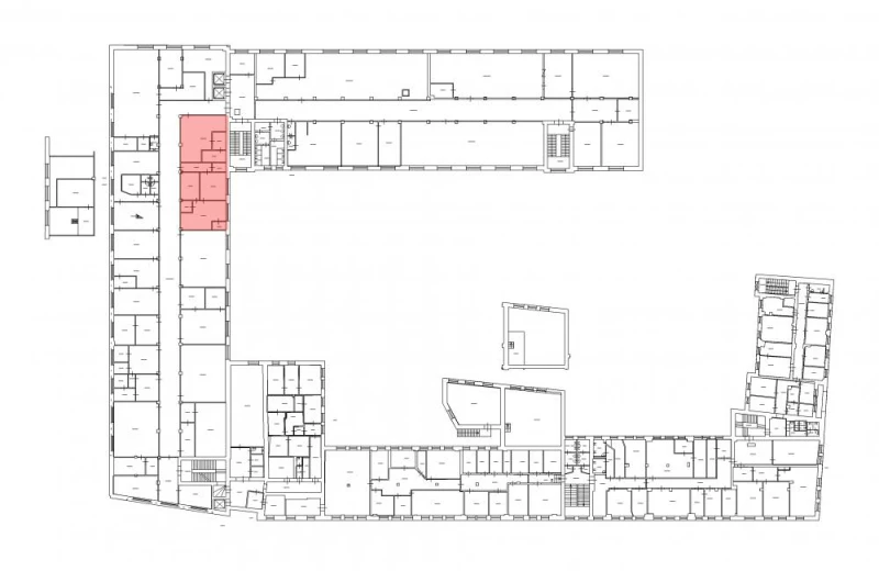
Звенигородская-зК-02 168.9 кв.м Общ. питание 1399
168.9 м²
площадь1399 ₽
за м²236 291,1 ₽
за месяц











Характеристики
| Район: | Адмиралтейский |
| Метро: | Звенигородская |
| Бизнес-центр | "Звенигородский" бизнес-центр |
| Этаж: | 2 |
Безопасность
| Охрана: | круглосуточная охрана |
| Контроль доступа: | в наличии |
Коммуникации
| Телефон: | есть |
| Интернет: | Оптоволокно |
В арендную плату входит
Профессиональное управление
НДС
Оплачивается отдельно
Водоснабжение
Электроснабжение
Отопление
Описание
Предлагаем в аренду помещение для открытия стильного лофт-бара в сердце города. Готовы выполнить реконструкцию пространства под ваш запрос. Адрес: Звенигородская улица, д. 9-11 — в шаговой доступности от станции метро "Звенигородская". Площадь помещения: 168,9 кв. м — идеальное пространство для создания уникального лофта с несколькими зонами. Высота потолков 4,8 м позволит сохранить аутентичную атмосферу промышленного стиля и разместить многоуровневое освещение. Технические преимущества: *Надежная электропроводка для работы основного и дополнительного освещения. *Автономная система отопления для комфортного пребывания гостей в любое время года. *Высокоскоростной интернет и цифровая телефония для бесперебойной работы. Инфраструктура помещения: *Грузовой лифт (1,4 х 1,95 х 2,2 м, грузоподъемность 2 т) для удобной доставки продуктов и оборудования. *Просторная парковка для гостей. Безопасность и комфорт: *Круглосуточное видеонаблюдение и охрана территории. *Современная система безопасности с датчиками пожаротушения. *Контрольно-пропускной режим для обеспечения безопасности. *Удобная система доступа для персонала и посетителей. Отличная транспортная доступность благодаря расположению рядом с: *Набережной Обводного канала. *Загородным проспектом. *Лиговским проспектом. Дополнительные возможности: *Отдельный офис для административной работы. *Возможность зонирования пространства под ваши потребности. *Потенциал для создания нескольких тематических зон в стиле лофт. Создайте успешный бар-проект в помещении, где каждая деталь продумана для вашего бизнеса!
Запись на просмотр
Пользовательским соглашением
Мы свяжемся с вами
в рабочее время
пн-пт с 09:00 до 18:00






