
Комс,2-зА-02 577 кв.м Офис 599
577 м²
площадь599 ₽
за м²345 623 ₽
за месяц

























Характеристики
| Район: | Калининский |
| Метро: | Площадь Ленина |
| Технопарк | "Арсенал", Комсомола 2 |
| Этаж: | 2 |
Безопасность
| Охрана: | круглосуточная охрана |
| Контроль доступа: | в наличии |
Коммуникации
| Телефон: | есть |
| Интернет: | Оптоволокно |
В арендную плату входит
Профессиональное управление
НДС
Оплачивается отдельно
Водоснабжение
Электроснабжение
Отопление
Описание
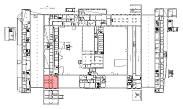
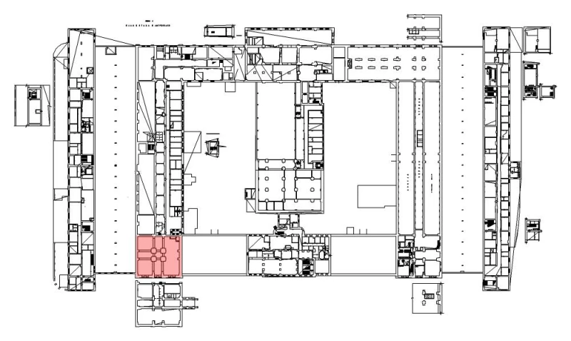
Предлагаем в аренду площадь 577 кв. м для ПРОВЕДЕНИЯ МЕРОПРИЯТИЙ. СВОБОДНО. 2-й этаж пространства АРСЕНАЛ. Требуется ремонт. Собственник готов предоставить арендные каникулы для выполнения ТЗ. На территории бывшего завода царит особая атмосфера, лучшего всего подойдет отделка в СТИЛЕ ЛОФТ. Просторные залы с высокими потолками (4,25 - 4,57 м), арочные окна. На фото представлен вариант организации планировочного решения. Имеется полное инженерное оснащение, установлена пожарная сигнализация. Безопасность на территории комплекса поддерживается круглосуточной ОХРАНОЙ. В пространстве Арсенал Вы будете в кругу единомышленников, так как по соседству много творческих заведений. Уже открыты "Temple of Deer", рестораны и театры. Пешеходный трафик обусловлен удачным местоположением. Всего в 15 минутах ходьбы находится станция МЕТРО "Площадь Ленина", рядом пролегает Кондратьевский проспект.
Запись на просмотр
Пользовательским соглашением
Мы свяжемся с вами
в рабочее время
пн-пт с 09:00 до 18:00






