
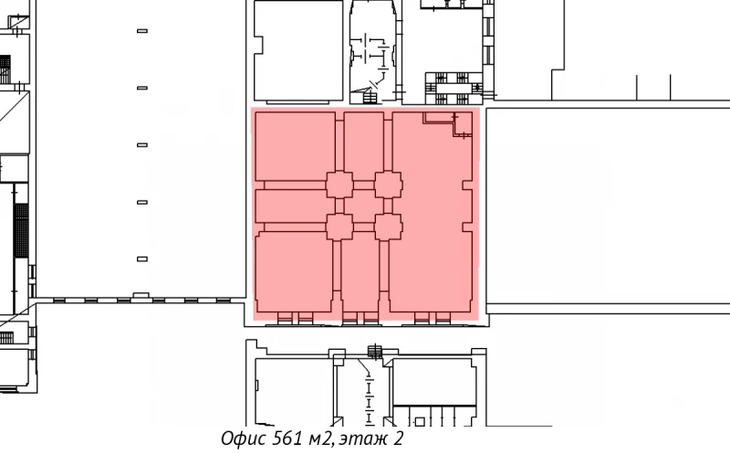
Комс,2-зА-02 561 кв.м Офис 658
561 м²
площадь658 ₽
за м²369 138 ₽
за месяц

















Характеристики
| Район: | Калининский |
| Метро: | Площадь Ленина |
| Технопарк | "Арсенал", Комсомола 2 |
| Этаж: | 2 |
Безопасность
| Охрана: | круглосуточная охрана |
| Контроль доступа: | в наличии |
Коммуникации
| Телефон: | есть |
| Интернет: | Оптоволокно |
В арендную плату входит
Профессиональное управление
НДС
Оплачивается отдельно
Водоснабжение
Электроснабжение
Отопление
Описание
Собственник предлагает в аренду блок помещений 561 кв. м под офис IT-компании. Помещения расположены на втором этаже здания по адресу ул. Комсомола, д. 2. Высота потолков 4,25 - 4,57 м. Просторные помещения позволят расположить всю необходимую офисную технику и мебель. Можно выполнить зонирование для размещения переговорных комнат, зон отдыха. Собственник готов предоставить арендные каникулы! Инженерные коммуникации: освещение, отопление, пожарная сигнализация. По запросу арендатора доступны для подключения интернет и телефония. Удобное расположение позволяет добраться как на общественном транспорте, так и на автомобиле. Пешая доступность от станции метро "Площадь Ленина", а также Финляндского вокзала. Рядом пролегают Арсенальная и Свердловская набережные, Литейный мост. Есть бесплатная парковка. На территории "Арсенала" есть кофейни и рестораны.
Запись на просмотр
Пользовательским соглашением
Мы свяжемся с вами
в рабочее время
пн-пт с 09:00 до 18:00





