
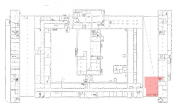
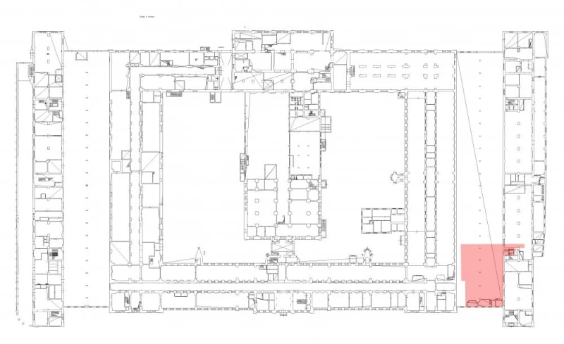
Комс,2-зА-01 665.8 кв.м Офис 649
665.8 м²
площадь649 ₽
за м²432 104,2 ₽
за месяц












Характеристики
| Район: | Калининский |
| Метро: | Площадь Ленина |
| Технопарк | "Арсенал", Комсомола 2 |
| Этаж: | 1 |
Безопасность
| Охрана: | круглосуточная охрана |
| Контроль доступа: | в наличии |
Коммуникации
| Телефон: | есть |
| Интернет: | Оптоволокно |
В арендную плату входит
Профессиональное управление
НДС
Оплачивается отдельно
Водоснабжение
Электроснабжение
Отопление
Описание
Аренда помещения площадью 665,8 кв. м под концертный зал в здании современного пространства Арсенал. Первый этаж, отдельный вход. Высота потолка до 10 метров. Пространство включает в себя большой зал для размещения сцены, помещение под кафе, гостевой санузел. Большая площадь позволяет разместить достаточное количество посадочных мест. За безопасность гостей можно не переживать, ведь в здании ведётся круглосуточная охрана. Выполнен косметический ремонт. Инженерные коммуникации: освещение, отопление, выделенная электроэнергия, пожарная сигнализация, ХВС, водоотведение. По запросу арендатора доступны для подключения высокоскоростной интернет и телефония. Ведётся круглосуточная охрана. В пешей доступности расположена станция метро "Площадь Ленина". Также рядом находятся Финляндский вокзал и остановки наземного транспорта. Транспортную доступность обеспечивают Литейный мост, Арсенальная набережная, Свердловская набережная. Рядом есть бесплатная парковка. На территории, есть кофейни и рестораны. Неподалёку находится площадь Ленина и Свердловский сад.
Запись на просмотр
Пользовательским соглашением
Мы свяжемся с вами
в рабочее время
пн-пт с 09:00 до 18:00







