
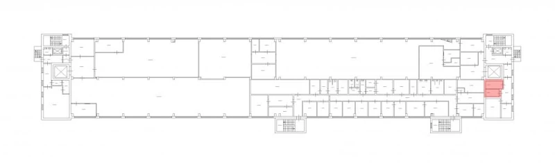
Комс,1-3-зГ-03, 02 18.3 кв.м Офис 782
18.3 м²
площадь782 ₽
за м²14 310,6 ₽
за месяц








Характеристики
| Район: | Калининский |
| Метро: | Площадь Ленина |
| Технопарк | "Арсенал", Комсомола 1-3 |
| Этаж: | 3 |
Безопасность
| Охрана: | круглосуточная охрана |
| Контроль доступа: | в наличии |
Коммуникации
| Телефон: | есть |
| Интернет: | Оптоволокно |
В арендную плату входит
Профессиональное управление
НДС
Оплачивается отдельно
Водоснабжение
Электроснабжение
Отопление
Описание
Аренда офисного помещения для строительного отдела. Площадь помещения: 18,3 кв. м. Планировка: 2 отдельных кабинета. Технические характеристики: *Отделка помещений- линолеум на полу, потолки "Армстронг". *Оснащение- электричество, отопление, освещение. *Безопасность- круглосуточная охрана, система контроля доступа по пропускам. Преимущества помещения: *Функциональность- разделение на 2 кабинета позволяет организовать рабочее пространство для разных отделов или сотрудников. *Коммуникации- наличие интернета и телефонии обеспечивает эффективную работу. *Комфорт- наличие мест для приема пищи на территории. *Доступ- организованная система пропусков для обеспечения безопасности. Помещение оптимально подходит для размещения строительного отдела благодаря: *Удобной планировке для разделения рабочих зон. *Наличию всех необходимых коммуникаций. *Высокому уровню безопасности. *Возможности организации полноценного рабочего процесса.
Запись на просмотр
Пользовательским соглашением
Мы свяжемся с вами
в рабочее время
пн-пт с 09:00 до 18:00








