
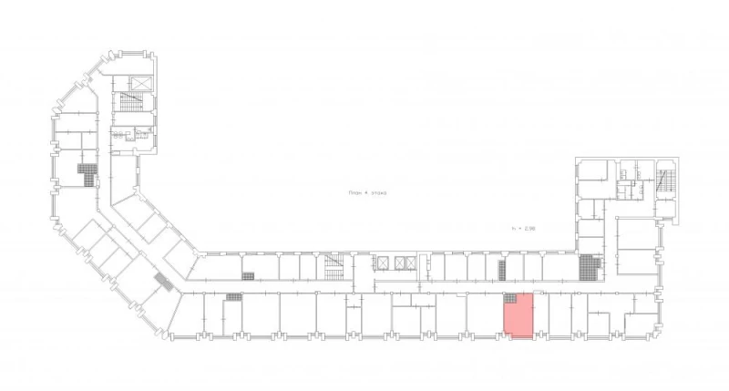
Конст2-зА-04 29.3 кв.м Офис 994
29.3 м²
площадь994 ₽
за м²29 124,2 ₽
за месяц








Характеристики
| Район: | Московский |
| Метро: | Московская |
| Бизнес-центр | "К-2" бизнес-центр |
| Этаж: | 4 |
Безопасность
| Охрана: | круглосуточная охрана |
| Контроль доступа: | в наличии |
Коммуникации
| Телефон: | есть |
| Интернет: | Оптоволокно |
В арендную плату входит
Профессиональное управление
НДС
Оплачивается отдельно
Водоснабжение
Электроснабжение
Отопление
Описание
В Московском районе города в аренду предлагается помещение под офис продаж. Помещение площадью 29,3 кв. м расположено на 4-м этаже БЦ на площади Конституции, д.2. Кабинетная планировка. Здание оснащено пожарной сигнализацией. Услуги: высокоскоростной интернет и цифровая телефония. На территории есть охраняемая парковка и столовая. Ближайшая станция метро - "Московская".
Запись на просмотр
Пользовательским соглашением
Мы свяжемся с вами
в рабочее время
пн-пт с 09:00 до 18:00






