
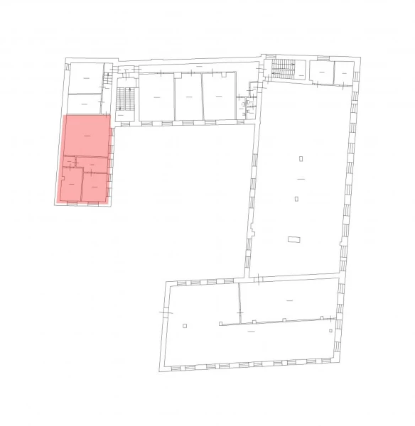
Дегт-зБ-02 96.5 кв.м Офис 906
96.5 м²
площадь906 ₽
за м²87 429 ₽
за месяц


















Характеристики
| Район: | Центральный |
| Метро: | Площадь Восстания |
| Бизнес-центр | "Рассвет" бизнес-центр |
| Этаж: | 2 |
Безопасность
| Охрана: | круглосуточная охрана |
| Контроль доступа: | в наличии |
Коммуникации
| Телефон: | есть |
| Интернет: | Оптоволокно |
В арендную плату входит
Профессиональное управление
НДС
Оплачивается отдельно
Водоснабжение
Электроснабжение
Отопление
Описание
Собственник предлагает в аренду офисный блок для бухгалтерии. Адрес: БЦ "Рассвет", Дегтярная улица, дом 5-7. Кабинетная планировка. Услуги: интернет, телефония. Оснащение: отопление, освещение, электроснабжение. Возможен круглосуточный режим работы. Ближайшая станция метро - "Площадь Восстания".
Запись на просмотр
Пользовательским соглашением
Мы свяжемся с вами
в рабочее время
пн-пт с 09:00 до 18:00








