
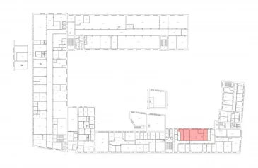
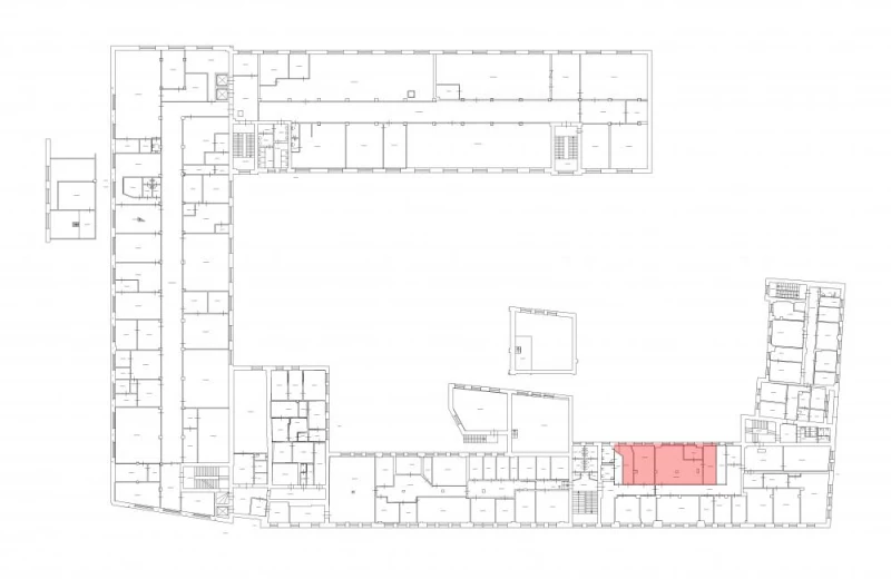
Звенигородская-зК-02 119.9 кв.м Офис 1201
119.9 м²
площадь1201 ₽
за м²143 999,9 ₽
за месяц













Характеристики
| Район: | Адмиралтейский |
| Метро: | Звенигородская |
| Бизнес-центр | "Звенигородский" бизнес-центр |
| Этаж: | 2 |
Безопасность
| Охрана: | круглосуточная охрана |
| Контроль доступа: | в наличии |
Коммуникации
| Телефон: | есть |
| Интернет: | Оптоволокно |
В арендную плату входит
Профессиональное управление
НДС
Оплачивается отдельно
Водоснабжение
Электроснабжение
Отопление
Описание
Аренда офисного блока общей площадью 119.9 кв. м Расположен на 2 этаже бизнес центра по адресу: Звенигородской ул., дом 9-11. Качественные ремонт. Несколько окон во двор. Три кабинета, каждый с отдельным входом. Оснащение: пожарная сигнализация, отопление, освещение. Услуги: высокоскоростной интернет, цифровая телефония. Проход на территорию осуществляется по электронным картам доступа. Охрана 24/7.
Запись на просмотр
Пользовательским соглашением
Мы свяжемся с вами
в рабочее время
пн-пт с 09:00 до 18:00







