
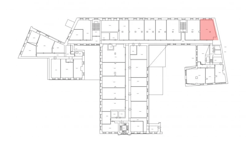
Кр23-зЕ-02 65.1 кв.м Офис 1043
65.1 м²
площадь1043 ₽
за м²67 899,3 ₽
за месяц
















Характеристики
| Район: | Приморский |
| Метро: | Черная речка |
| Бизнес-центр | "Ильич" бизнес-центр |
| Этаж: | 2 |
Безопасность
| Охрана: | круглосуточная охрана |
| Контроль доступа: | в наличии |
Коммуникации
| Телефон: | есть |
| Интернет: | Оптоволокно |
В арендную плату входит
Профессиональное управление
НДС
Оплачивается отдельно
Водоснабжение
Электроснабжение
Отопление
Описание
В Приморском районе города предлагается в аренду офис. Второй ЭТАЖ здания по адресу: Красногвардейский переулок, дом 23. ОСНАЩЕНИЕ: отопление, освещение, пожарная сигнализация. Коммуникации: цифровая телефония, высокоскоростной интернет. Возможен круглосуточный режим работы. Станция метро "Черная речка" в 12 минутах пешком.
Запись на просмотр
Пользовательским соглашением
Мы свяжемся с вами
в рабочее время
пн-пт с 09:00 до 18:00






