
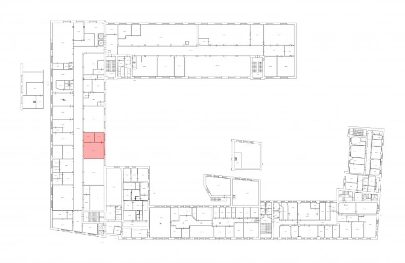
Звенигородская-зК-02 83.5 кв.м Офис 849
83.5 м²
площадь849 ₽
за м²70 891,5 ₽
за месяц














Характеристики
| Район: | Адмиралтейский |
| Метро: | Звенигородская |
| Бизнес-центр | "Звенигородский" бизнес-центр |
| Этаж: | 2 |
Безопасность
| Охрана: | круглосуточная охрана |
| Контроль доступа: | в наличии |
Коммуникации
| Телефон: | есть |
| Интернет: | Оптоволокно |
В арендную плату входит
Профессиональное управление
НДС
Оплачивается отдельно
Водоснабжение
Электроснабжение
Отопление
Описание
Бюджетный офис в центре города от собственника! Площадь: 83,5 кв. м. Прекрасный вариант для турагентства. Площадь состоит из отдельных помещений, что позволят разместить весь штат сотрудников. Возможен ремонт по вашим предпочтениям. Каждую неделю проводится клининг помещения. Готовые инженерные системы для комфортной работы: отопление, освещение, пожарная сигнализация. Также доступно подключение высокоскоростного интернета и цифровой телефонии. Здание и территория находятся под круглосуточной охраной. Ведётся видеонаблюдение. Есть охраняемая парковка на территории. В стоимость входит НДС. Дополнительно оплачивается Opex, КУ, услуги связи, парковка. В здании есть столовая. В шаговой доступности станции метро "Звенигородская", "Пушкинская" и "Лиговский проспект". В непосредственной близости расположены остановки общественного наземного транспорта. Рядом пролегают Звенигородская улица, набережная Обводного канала, Лиговский и Московский проспекты. На территорию есть удобный заезд с улицы Звенигородской.
Запись на просмотр
Пользовательским соглашением
Мы свяжемся с вами
в рабочее время
пн-пт с 09:00 до 18:00







