
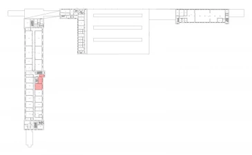
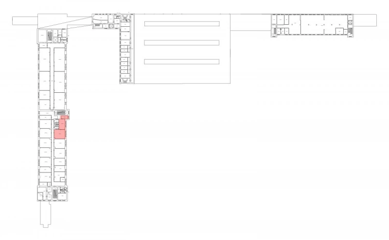
Швец41-зА-03 87.1 кв.м Офис 829
87.1 м²
площадь829 ₽
за м²72 205,9 ₽
за месяц








Характеристики
| Район: | Кировский |
| Метро: | Нарвская |
| Технопарк | "Нарвский" технопарк, Швецова 41 |
| Этаж: | 3 |
Безопасность
| Охрана: | круглосуточная охрана |
| Контроль доступа: | в наличии |
Коммуникации
| Телефон: | есть |
| Интернет: | Оптоволокно |
В арендную плату входит
Профессиональное управление
НДС
Оплачивается отдельно
Водоснабжение
Электроснабжение
Отопление
Описание
Аренда помещения для нотариуса у метро "Нарвская". Адрес: ул. Швецова, дом 41, Кировский район, Санкт-Петербург. Площадь помещения: 87,1 кв. м. Этаж: 3-й. Планировка: кабинетная. Отделка: выполнен евроремонт. Коммуникации: пожарная сигнализация, освещение, отопление. Безопасность: территория под круглосуточной охраной, система видеонаблюдения. Доступ: электронные карты доступа. Преимущества помещения: *Удобное расположение рядом с метро. *Качественная отделка помещения. *Оптимальная планировка для работы нотариуса. *Высокий уровень безопасности. *Благоустроенная территория. Помещение идеально подходит для размещения нотариальной конторы. Заключается договор аренды напрямую с собственником. Для получения подробной информации и записи на просмотр звоните по телефону.
Запись на просмотр
Пользовательским соглашением
Мы свяжемся с вами
в рабочее время
пн-пт с 09:00 до 18:00






