
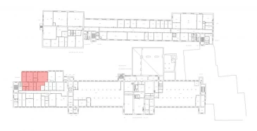
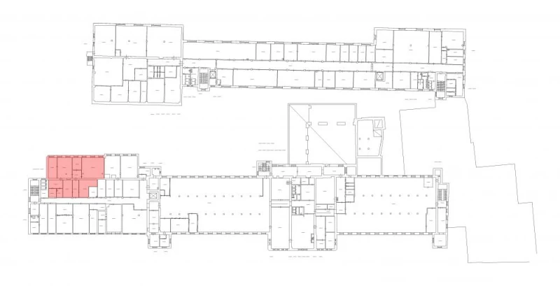
Пром5-зА-03 255.1 кв.м Производство 589
255.1 м²
площадь589 ₽
за м²150 253,9 ₽
за месяц















Характеристики
| Район: | Кировский |
| Метро: | Нарвская |
| Технопарк | "Промышленная 5" технопарк |
| Этаж: | 3 |
Безопасность
| Охрана: | круглосуточная охрана |
| Контроль доступа: | в наличии |
Коммуникации
| Телефон: | есть |
| Интернет: | Оптоволокно |
В арендную плату входит
Профессиональное управление
НДС
Оплачивается отдельно
Водоснабжение
Электроснабжение
Отопление
Описание
Собственник предлагает в аренду производственный блок площадью 255,1 кв. м. В здании работают грузовые лифты, установлены камеры видеонаблюдения и датчики пожарной сигнализации. В деловом комплексе проведены высокоскоростной интернет и цифровая телефония, работает кафе, оборудована охраняемая парковка. Помещения находятся в Кировском районе по адресу: ул. Промышленной, дом 5. В пешей доступности — станция метро "Нарвская", проспект Стачек. Оснащение: электричество, освещение, отопление. Собственный санузел.
Запись на просмотр
Пользовательским соглашением
Мы свяжемся с вами
в рабочее время
пн-пт с 09:00 до 18:00







