
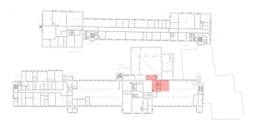
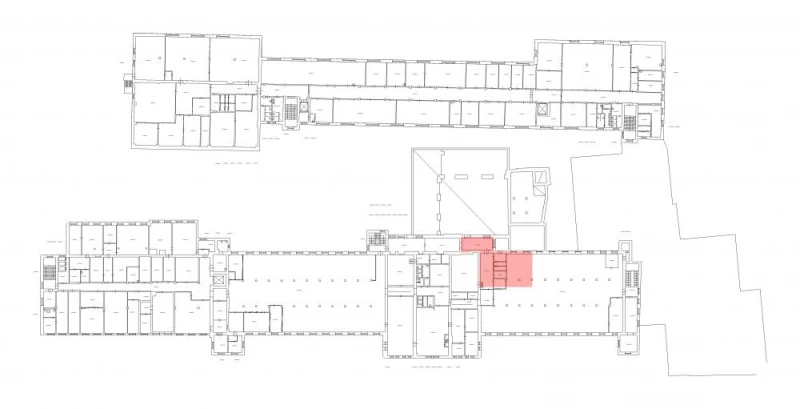
Пром5-зА-03 136.4 кв.м Производство 669
136.4 м²
площадь669 ₽
за м²91 251,6 ₽
за месяц
















Характеристики
| Район: | Кировский |
| Метро: | Нарвская |
| Технопарк | "Промышленная 5" технопарк |
| Этаж: | 3 |
Безопасность
| Охрана: | круглосуточная охрана |
| Контроль доступа: | в наличии |
Коммуникации
| Телефон: | есть |
| Интернет: | Оптоволокно |
В арендную плату входит
Профессиональное управление
НДС
Оплачивается отдельно
Водоснабжение
Электроснабжение
Отопление
Описание
Аренда помещения под ПРОИЗВОДСТВЕННЫЙ ЦЕХ на Промышленной ул., д. 5. Этаж 3-й. Есть грузовой лифт на этаже 2т (2,4х1,9х2,2м). Ближайшая станция метро "Нарвская". Общая площадь помещения 136,4 кв. м. Высота потолка 3,5 м. Оснащение: выделенная электроэнергия, освещение, отопление. Проезд/проход на территорию осуществляется по пропускам. Охрана 24 часа.
Запись на просмотр
Пользовательским соглашением
Мы свяжемся с вами
в рабочее время
пн-пт с 09:00 до 18:00







