
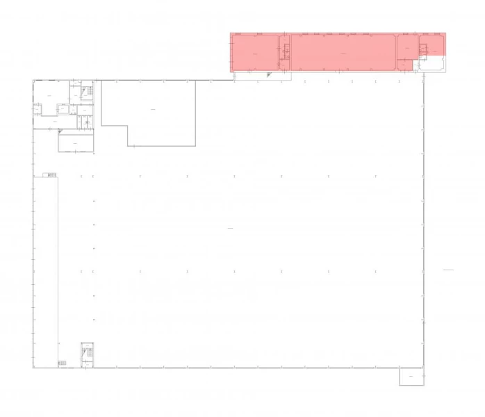
Сал56-зО-01 503.9 кв.м Производство 999
503.9 м²
площадь999 ₽
за м²503 396,1 ₽
за месяц









Характеристики
| Район: | Фрунзенский |
| Метро: | Бухарестская |
| Технопарк | "Завод им.Шаумяна" технопарк |
| Этаж: | 1 |
Безопасность
| Охрана: | круглосуточная охрана |
| Контроль доступа: | в наличии |
Коммуникации
| Телефон: | есть |
| Интернет: | Оптоволокно |
В арендную плату входит
Профессиональное управление
НДС
Оплачивается отдельно
Водоснабжение
Электроснабжение
Отопление
Описание
Аренда производственного блока на территории технопарка "Шаумяна". 1-й этаж здания. Отдельный вход, роллетные ворота в уровень земли. Зона разгрузки. Н потолка 7,94 м, бетонный пол. Инженерное оснащение: выделенная электрическая мощность, освещение, отопление, пожарная сигнализация, ХВС и водоотведение. Услуги: охрана 24 часа, парковка. Рядом пролегают крупные магистрали: Софийская, Салова, Белы Куна и Бухарестская улицы. В 15 минутах ходьбы станция метро "Бухарестская", в нескольких шагах - автобусные остановки.
Запись на просмотр
Пользовательским соглашением
Мы свяжемся с вами
в рабочее время
пн-пт с 09:00 до 18:00








