
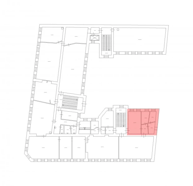
Дегт-зВ-02 86.1 кв.м Производство 701
86.1 м²
площадь701 ₽
за м²60 356,1 ₽
за месяц








Характеристики
| Район: | Центральный |
| Метро: | Площадь Восстания |
| Бизнес-центр | "Рассвет" бизнес-центр |
| Этаж: | 2 |
Безопасность
| Охрана: | круглосуточная охрана |
| Контроль доступа: | в наличии |
Коммуникации
| Телефон: | есть |
| Интернет: | Оптоволокно |
В арендную плату входит
Профессиональное управление
НДС
Оплачивается отдельно
Водоснабжение
Электроснабжение
Отопление
Описание
Собственник предлагает снять производственное помещение 86,1 кв. м для размещения ювелирной мастерской. Второй этаж бизнес-центра "Рассвет" в Центральном районе. Помещение уже разделено на 4 кабинета, в которых можно организовать основной цех, а также склад с сейфом для драгметаллов. Здание бизнес-центра и прилегающая территория находятся под круглосуточной охраной, что делает хранение любых материалов и оборудования безопасным. Оснащение: отопление, освещение, выделенная электроэнергия, пожарная сигнализация. Доступно подключение высокоскоростного интернета и цифровой телефонии. Пешком можно добраться от станций метро "Площадь Восстания", "Маяковская". Близко к БЦ расположены автобусные остановки. Рядом пролегают Невский и Лиговский проспекты. Заезд транспорта осуществляется с 3-ей Советской улицы. В шаговой доступности есть кафе и магазины.
Запись на просмотр
Пользовательским соглашением
Мы свяжемся с вами
в рабочее время
пн-пт с 09:00 до 18:00







