
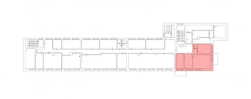
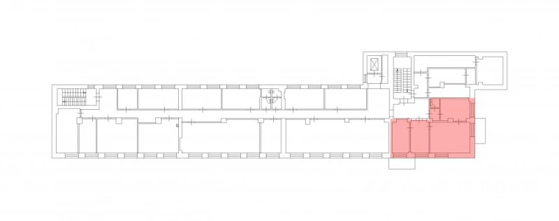
Урал19-зА(корпус8)-02 99 кв.м Производство 571
99 м²
площадь571 ₽
за м²56 529 ₽
за месяц














Характеристики
| Район: | Василеостровский |
| Метро: | Василеостровская |
| Бизнес-центр | "Урал Плаза" бизнес-центр |
| Этаж: | 2 |
Безопасность
| Охрана: | круглосуточная охрана |
| Контроль доступа: | в наличии |
Коммуникации
| Телефон: | есть |
| Интернет: | Оптоволокно |
В арендную плату входит
Профессиональное управление
НДС
Оплачивается отдельно
Водоснабжение
Электроснабжение
Отопление
Описание
В аренду предлагается блок площадью 99 кв. м под производство на Уральской ул., д. 19. Ближайшая станция метро "Василеостровская". Второй этаж БЦ. В здании работает пассажирский лифт г/п 630 кг. На этаже кабинетная планировка. Оснащение: ХВС, водоотведение, отопление, освещение, пожарная сигнализация, высокоскоростной интернет, цифровая телефония. На территории БЦ "Урал Плаза" ведется круглосуточная охрана, действует пропускной режим.
Запись на просмотр
Пользовательским соглашением
Мы свяжемся с вами
в рабочее время
пн-пт с 09:00 до 18:00






