
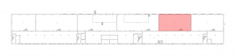
Сал56-зН-01 305.9 кв.м Производство 999
305.9 м²
площадь999 ₽
за м²305 594,1 ₽
за месяц









Характеристики
| Район: | Фрунзенский |
| Метро: | Бухарестская |
| Технопарк | "Завод им.Шаумяна" технопарк |
| Этаж: | 1 |
Безопасность
| Охрана: | круглосуточная охрана |
| Контроль доступа: | в наличии |
Коммуникации
| Телефон: | есть |
| Интернет: | Оптоволокно |
В арендную плату входит
Профессиональное управление
НДС
Оплачивается отдельно
Водоснабжение
Электроснабжение
Отопление
Описание
На территории производственно-складского комплекса "Шаумяна" в аренду сдаётся помещение под мастерскую. Общая площадь помещения составляет 305.9 кв. м. Расположение: ул. Салова, дом 56. Особенности локации: охраняемая территория, проход по пропускам. Находится на первом этаже здания. Высота потолка 7.13 м, полы - бетонные. Погрузочно-разгрузочные работы осуществляются через ворота 3 х 4 м. Удобный подъезд для грузового транспорта и площадка для маневрирования обеспечат легкую доставку грузов к производству. Оснащение: выделенная электрическая мощность 10 кВт, освещение, отопление, пожарная сигнализация. В стоимость аренды входит НДС. Для уточнения деталей и организации просмотра участка, пожалуйста, свяжитесь с нами. Мы готовы обсудить условия аренды и ответить на все интересующие вопросы.
Запись на просмотр
Пользовательским соглашением
Мы свяжемся с вами
в рабочее время
пн-пт с 09:00 до 18:00








