
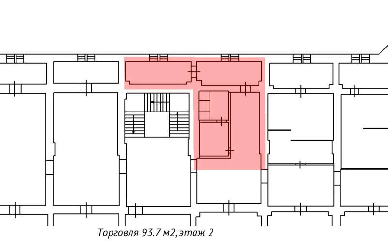
ПушкинМоск-зА-02 93.7 кв.м Торговля 570
93.7 м²
площадь570 ₽
за м²53 409 ₽
за месяц







Характеристики
| Район: | Пушкинский |
| Метро: | Купчино |
| Торговый центр | Пушкин, Московская, 25 |
| Этаж: | 2 |
Безопасность
| Охрана: | круглосуточная охрана |
| Контроль доступа: | в наличии |
Коммуникации
| Телефон: | есть |
| Интернет: | Оптоволокно |
В арендную плату входит
Профессиональное управление
НДС
Оплачивается отдельно
Водоснабжение
Электроснабжение
Отопление
Описание
Предлагаем в аренду помещение под магазин в ТК "Гостиный Двор" (Пушкин). В помещении подвесной потолок, окрашенные обои, на полу кафель. Высота потолка - 2.8 м. Имеется доступ к высокоскоростному интернету, цифровой телефонии. На территории расположен продуктовый рынок, кафе, магазины одежды и обуви.
Запись на просмотр
Пользовательским соглашением
Мы свяжемся с вами
в рабочее время
пн-пт с 09:00 до 18:00






