
ПушкинМоск-зА-00 101.8 кв.м Торговля 534
101.8 м²
площадь534 ₽
за м²54 361,2 ₽
за месяц







Характеристики
| Район: | Пушкинский |
| Метро: | Купчино |
| Торговый центр | Пушкин, Московская, 25 |
| Этаж: | подвал |
Безопасность
| Охрана: | круглосуточная охрана |
| Контроль доступа: | в наличии |
Коммуникации
| Телефон: | есть |
| Интернет: | Оптоволокно |
В арендную плату входит
Профессиональное управление
НДС
Оплачивается отдельно
Водоснабжение
Электроснабжение
Отопление
Описание
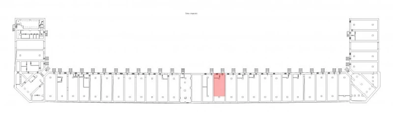
В центре города Пушкина собственник предлагает в аренду торговую площадь 101,8 кв. м. Помещение находится в подвале торгового центра "Гостиный Двор". Магазин подойдёт под размещение музыкальных инструментов. В помещении естественная звукоизоляция, толстые стены, сводчатые потолки. Удачная локация позволит вам создать популярный и необычный магазин. Можно разместить любые музыкальные инструменты и сопутствующие товары - территория круглосуточно охраняется. Ведётся видеонаблюдение. Дополнительно предоставляется доступ к высокоскоростному интернету и телефонии. Высокая проходимость торгового центра "Гостиный Двор" обусловливается наличием действующих арендаторов и расположением самого ТЦ, который окружён парками. Возможно размещение наружной рекламы. В непосредственной близости пролегают Петербургское шоссе, Октябрьский бульвар и Оранжерейная улица. Рядом находится станция "Царское Село" и автобусные остановки. Вход в помещение через рынок. Доступ соответствует режиму работы рынка: пн.-сб.: 8:00-19:00, вс.: 8:00-17:00. 2-й пн. месяца - санитарный день.
Запись на просмотр
Пользовательским соглашением
Мы свяжемся с вами
в рабочее время
пн-пт с 09:00 до 18:00





