
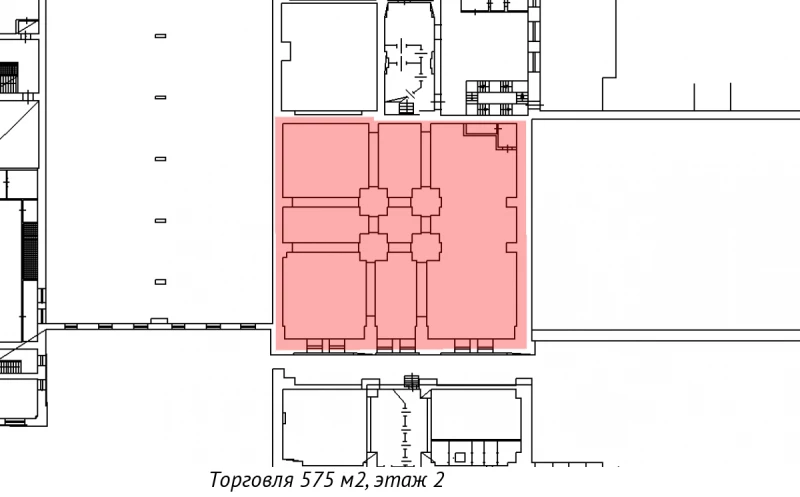
Комс,2-зА-02 575 кв.м Торговля 575
575 м²
площадь575 ₽
за м²330 625 ₽
за месяц























Характеристики
| Район: | Калининский |
| Метро: | Площадь Ленина |
| Технопарк | "Арсенал", Комсомола 2 |
| Этаж: | 2 |
Безопасность
| Охрана: | круглосуточная охрана |
| Контроль доступа: | в наличии |
Коммуникации
| Телефон: | есть |
| Интернет: | Оптоволокно |
В арендную плату входит
Профессиональное управление
НДС
Оплачивается отдельно
Водоснабжение
Электроснабжение
Отопление
Описание
Аренда помещения под РЕСТОРАН/КАФЕ/КЛУБ на территории пространства Арсенал. Блок ПЛОЩАДЬЮ 575 кв. м расположен на 2-м ЭТАЖЕ здания на территории бывшего завода, что позволяет создать особенную атмосферу. Требуется ремонт. Собственник готов предоставить арендные каникулы. Есть возможность выделить современную лаунж-зону. Электричество, отопление, освещение, интернет и телефония уже ПРОВЕДЕНЫ, высота потолков - 4,25 - 4,57 м. Пространство Арсенал находится на улице Комсомола, дом 2, вблизи живописной Арсенальной набережной. Здесь открыты рестораны, концертные залы, творческие мастерские. От станции МЕТРО "Площадь Ленина" можно дойти пешком, рядом также есть остановки общественного транспорта.
Запись на просмотр
Пользовательским соглашением
Мы свяжемся с вами
в рабочее время
пн-пт с 09:00 до 18:00






