
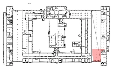
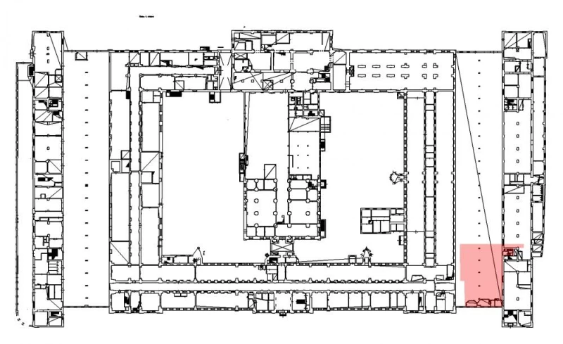
Комс,2-зА-01 664.4 кв.м Торговля 649
664.4 м²
площадь649 ₽
за м²431 195,6 ₽
за месяц











Характеристики
| Район: | Калининский |
| Метро: | Площадь Ленина |
| Технопарк | "Арсенал", Комсомола 2 |
| Этаж: | 1 |
Безопасность
| Охрана: | круглосуточная охрана |
| Контроль доступа: | в наличии |
Коммуникации
| Телефон: | есть |
| Интернет: | Оптоволокно |
В арендную плату входит
Профессиональное управление
НДС
Оплачивается отдельно
Водоснабжение
Электроснабжение
Отопление
Описание
Помещение 664,4 кв. м в аренду для проведения ярмарок в здании современного пространства Арсенал. Первый этаж здания по адресу: улица Комсомола, дом 2. Отдельный вход с улицы Комсомола. Потолки до 10 метров. Обеспечен высокий пешеходный трафик, ведь на территории размещены рестораны, концертные залы, театры. Также неподалёку находятся общественные зоны отдыха. Территория и здание находятся под круглосуточной охраной, а это значит, что за сохранность вещей можно не переживать. Оснащение помещения: освещение, отопление, пожарная сигнализация, ХВС, водоотведение. Доступны для подключения высокоскоростной интернет и телефония. Пространство Арсенал находится в пешей доступности от станции метро "Площадь Ленина", а также Финляндского вокзала. Рядом пролегают Арсенальная и Свердловская набережные, Литейный мост. Со стороны улицы Комсомола есть бесплатная парковка. На территории есть рестораны и кофейни.
Запись на просмотр
Пользовательским соглашением
Мы свяжемся с вами
в рабочее время
пн-пт с 09:00 до 18:00







