
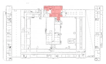
Комс,2-зА-01 1122.3 кв.м Общ. питание 942
1122.3 м²
площадь942 ₽
за м²1 057 206,6 ₽
за месяц


























Характеристики
| Район: | Калининский |
| Метро: | Площадь Ленина |
| Технопарк | "Арсенал", Комсомола 2 |
| Этаж: | 1 |
Безопасность
| Охрана: | круглосуточная охрана |
| Контроль доступа: | в наличии |
Коммуникации
| Телефон: | есть |
| Интернет: | Оптоволокно |
В арендную плату входит
Профессиональное управление
НДС
Оплачивается отдельно
Водоснабжение
Электроснабжение
Отопление
Описание
Аренда помещения под ресторан на территории пространства Арсенал. Помещение находится в пешей доступности от станции метро "Площадь Ленина", что обеспечивает удобный доступ посетителей. Транспортная доступность: *Удобный подъезд на автомобиле по Арсенальной набережной. *Прямой выезд на Кондратьевский и Полюстровский проспекты. *Развитая городская инфраструктура. Особенности помещения: *Высокие потолки, создающие просторную атмосферу. *Кирпичные стены, формирующие уникальный лофт-стиль. *Проведены все необходимые инженерные коммуникации. *Выделенная эл. мощность 400 кВт. *Подключены интернет и телефония. Система безопасности: *Круглосуточная охрана территории. *Видеонаблюдение 24/7. *Современная пожарная сигнализация. Окружающая инфраструктура: *Концертные залы. *Банкетные помещения. *Развлекательные центры. Помещение идеально подходит для открытия ресторана премиум-класса благодаря своему расположению, техническим характеристикам и высокому уровню безопасности. Все необходимые коммуникации уже проведены, что позволяет значительно сократить время на подготовку к открытию.
Запись на просмотр
Пользовательским соглашением
Мы свяжемся с вами
в рабочее время
пн-пт с 09:00 до 18:00







