
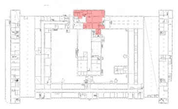
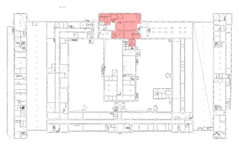
Комс,2-зА-01 1122.3 кв.м Общ. питание 944
1122.3 м²
площадь944 ₽
за м²1 059 451,2 ₽
за месяц







Характеристики
| Район: | Калининский |
| Метро: | Площадь Ленина |
| Технопарк | "Арсенал", Комсомола 2 |
| Этаж: | 1 |
Безопасность
| Охрана: | круглосуточная охрана |
| Контроль доступа: | в наличии |
Коммуникации
| Телефон: | есть |
| Интернет: | Оптоволокно |
В арендную плату входит
Профессиональное управление
НДС
Оплачивается отдельно
Водоснабжение
Электроснабжение
Отопление
Описание
Аренда помещения под ресторан на Комсомола 2. Предлагаем в аренду уникальное помещение для открытия ресторана , расположенное в пешей доступности от станции метро "Площадь Ленина", что является важным фактором для успешного бизнеса и обеспечивает легкий доступ для посетителей. ▎Транспортная доступность: • Удобный подъезд на автомобиле по Арсенальной набережной. • Прямой выезд на Кондратьевский и Полюстровский проспекты. • Развита городская инфраструктура, что способствует высокой проходимости. • Остановки общественного транспорта в шаговой доступности. • Станция метро "Площадь Ленина" находится всего в 10 минутах пешком. ▎Особенности помещения: • Высокие потолки, создающие ощущение простора. • Большие панорамные окна с живописным видом на реку Неву. • Кирпичные стены, придающие помещению стильный и современный вид. • Все необходимые инженерные коммуникации подключены, включая электричество (400 кВт), интернет и телефонию. ▎Безопасность: • Охраняемая территория круглосуточно (24/7). • Система видеонаблюдения для обеспечения безопасности. • Пожарная сигнализация, соответствующая современным стандартам. ▎Инфраструктура: • В непосредственной близости находятся концертные залы, банкетные помещения и развлекательные центры. • Свердловский сад и набережная реки Невы создают приятную атмосферу для отдыха. Это помещение идеально подходит для реализации амбициозных идей в ресторанном бизнесе благодаря своему привлекательному расположению, отличным техническим характеристикам и высокому уровню безопасности. Все необходимые коммуникации уже проведены, что позволит значительно сократить время на подготовку к открытию. Не упустите возможность стать частью динамичного пространства Арсенал!
Запись на просмотр
Пользовательским соглашением
Мы свяжемся с вами
в рабочее время
пн-пт с 09:00 до 18:00







