
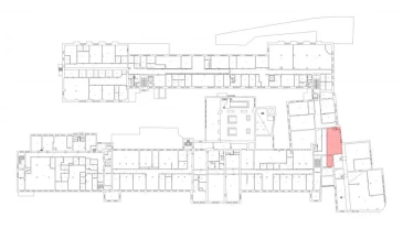
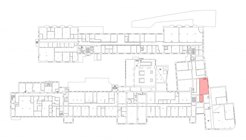
Пром5-зА-02 107.2 кв.м Производство 582
107.2 м²
площадь582 ₽
за м²62 390,4 ₽
за месяц










Характеристики
| Район: | Кировский |
| Метро: | Нарвская |
| Технопарк | "Промышленная 5" технопарк |
| Этаж: | 2 |
Безопасность
| Охрана: | круглосуточная охрана |
| Контроль доступа: | в наличии |
Коммуникации
| Телефон: | есть |
| Интернет: | Оптоволокно |
В арендную плату входит
Профессиональное управление
НДС
Оплачивается отдельно
Водоснабжение
Электроснабжение
Отопление
Описание
Сдаётся в аренду производственное помещение в Кировском районе города. Общая площадь помещений составляет 107.2 кв. м. 2-й этаж здания. Рядом грузовой лифт. Оснащение: освещение, отопление, выделенная электроэнергия. Ведется круглосуточная охрана, проход осуществляется по электронным картам доступа. На территории есть парковка. Расположение: технопарк "Промышленная".
Запись на просмотр
Пользовательским соглашением
Мы свяжемся с вами
в рабочее время
пн-пт с 09:00 до 18:00







